La especialista
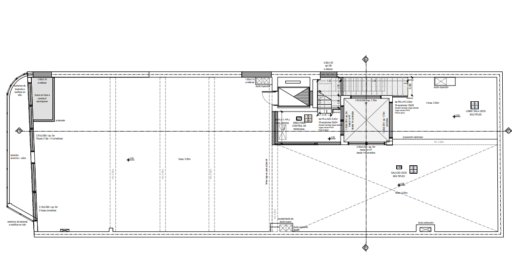
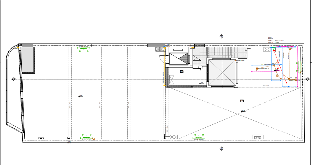
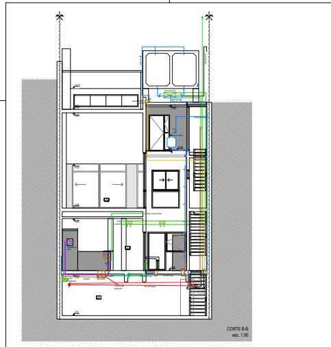
Ampliación y remodelación de local comercial
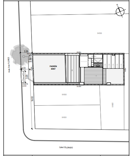
Ubicación: Av. General Flores 2762/64
Fecha de Inicio: 26/05/2021
Dirección de Obra: Arq. Ignacio Tuduri
Plazo de Obra: 6 meses
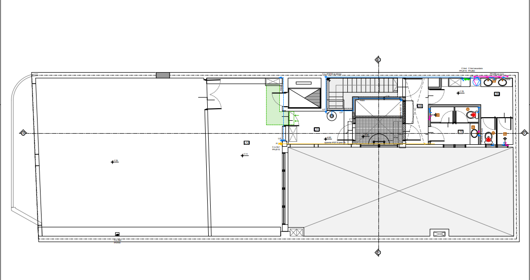
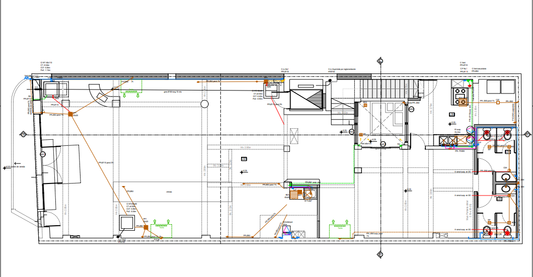
Ampliación y remodelación de local comercial
Ubicación: Av. General Flores 2762/64
Fecha de Inicio: 26/05/2021
Dirección de Obra: Arq. Ignacio Tuduri
Plazo de Obra: 6 meses